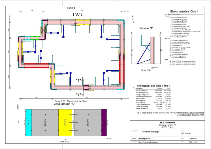
Doka, cassaforma Framax

EUR 450,00

senza tasse più la spedizione

Cuscinetto per casseforme per EuroSchal. Ora è necessario aggiungere un programma di casseforme per pareti versione completa o aggiornamento.